Nhà Phố Ở Kết Hợp Cho Thuê
Ngày nay tại các đô thị lớn, mật độ dân cư đông đúc, nhu cầu thuê nhà cao. Các chủ đầu tư thường xây nhà để ở kết hợp với cho thuê để tạo ra dòng tiền thu nhập thụ động phát triển kinh tế. Dưới đây là công trình tiêu biểu cho xu hướng trên được Xây Dựng Đại Việt thiết kế cho một khách hàng ở quận Hoàng Mai, Hà Nội.

Thông Tin Công Trình “Nhà Ở Kết Hợp Cho Thuê”
- Khách hàng: Chú Chiêm
- Địa chỉ: Hoàng Mai, Hà Nội
- Phong cách thiết kế: Nhà phố tân cổ điển
- Diện tích xây dựng: 4.8×18.1m
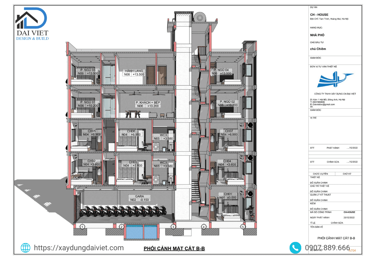
- Tâng 1: Để xe, thang bộ, thang máy, 1 căn hộ khép kín cho thuê
- Tầng 2,3: mỗi tầng có 3 căn hộ khép kín cho thuê
- Tầng 4: Phòng khách + Bếp, 2 phòng ngủ có phòng vệ sinh khép kín
- Tầng 5: Phòng thờ, 2 phòng ngủ có vệ sinh khép kín
- Tầng Tum: Sân chơi, sân phơi, để hệ thống điều hòa
Mặt tiền ngôi nhà được thiết kế theo phong cách tân cổ điển nhẹ nhàng, đơn gian, không quá cầu kỳ nhưng vẫn toát lên vẻ sang trọng và trang nhã

Tầng 1 – Khu để xe
Tầng 1 được thiết kế rộng rãi, làm khu để xe cho cư dân sinh sống trong nhà. Ngoài ra, còn bố trí được 1 căn hộ khép kín để cho thuê. Thang bộ và thang máy được đặt giữa nhà để thuận tiện giao thông đi lại.

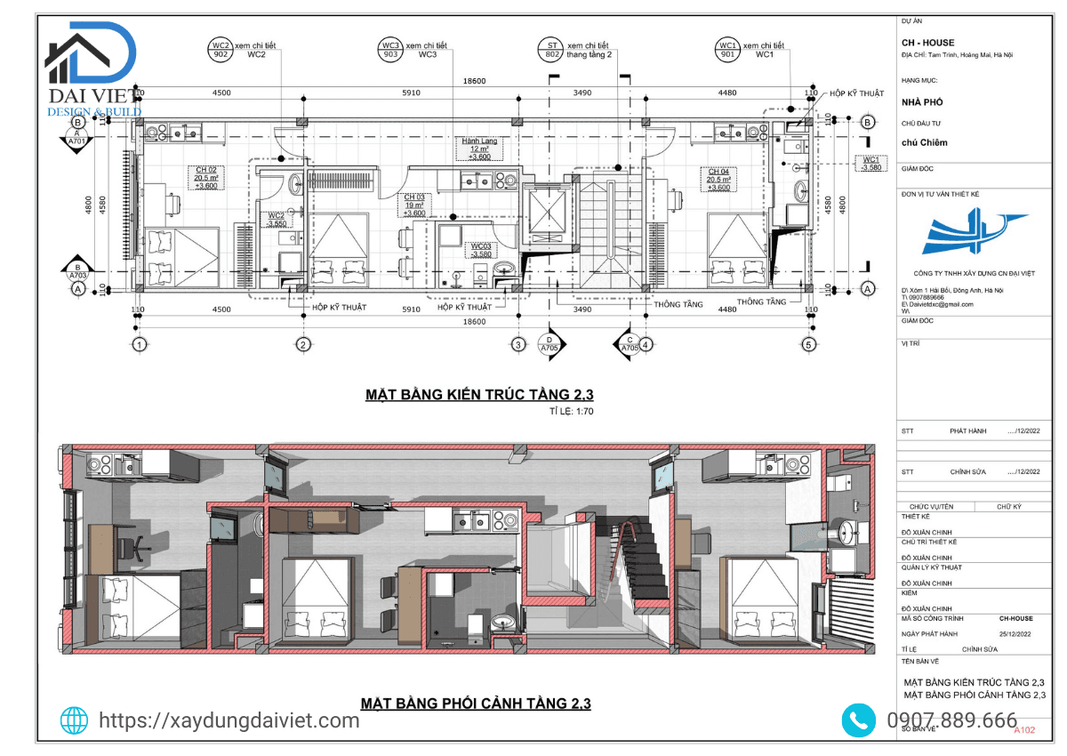
Tầng 2 & 3 – Khu cho thuê
Tầng 2, tầng 3 được bố trí 3 căn hộ khép kín cho thuê, có đầy đủ tiện nghi với phòng vệ sinh khép kín kết hợp với giặt đồ, khu bếp nấu. Mỗi căn hộ đều được mở cửa ra khoảng không trước nhà hoặc khoảng thông tầng thông thoáng.

Tầng 4 & 5 – Khu sinh hoạt của gia chủ
Tầng 4 và 5 là không gian sống của gia chủ, được thiết kế hiện đại và đầy đủ tiện nghi. Bao gồm phòng khách, bếp, phòng ăn, phòng ngủ rộng rãi và khu vực làm việc. Cửa sổ bố trí hợp lý giúp không gian luôn thoáng mát và đầy ánh sáng tự nhiên.


Tầng tum – Sân phơi và khu kỹ thuật
Tầng tum là không gian sân phơi đồ, và khu vực kỹ thuật (đặt bồn nước, hệ thống điện nước của ngôi nhà).




Ngôi nhà 5 tầng 1 tum kết hợp giữa nhà ở và cho thuê là một giải pháp hoàn hảo, giúp gia chủ tối đa hóa giá trị bất động sản trong khi vẫn đảm bảo sự riêng tư và tiện nghi của gia đình.
Liên hệ ngay để được tư vấn miễn phí!
Xây Dựng Đại Việt cam kết mang đến không chỉ một ngôi nhà đẹp mà còn là một tổ ấm hoàn hảo, nơi lưu giữ những giá trị sống ý nghĩa.
Mọi chi tiết liên hệ:
Công ty TNHH Xây Dựng CN Đại Việt
► 57 Đường Hải Bối, Hải Bối, Đông Anh, Hà Nội.
►Hotline: 0907.889.666 – Mr. Đỗ Xuân Chinh
►Email: Daivietdxc@gmail.com
