Nhà phố 4 tầng 1 tum

Nhà phố 4 tầng 1 tum 4,5x12m của cô Bình tại Long Biên, Hà Nội

Mẫu nhà phố 4 tầng 1 tum do Xây Dựng Đại Việt thiết kế và thi công trọn gói là một biểu tượng của sự hiện đại và tối ưu không gian sống tại các khu đô thị đông đúc. Thiết kế không chỉ đáp ứng mọi nhu cầu sinh hoạt của gia đình mà còn mang đến vẻ đẹp kiến trúc hài hòa, gần gũi thiên nhiên.

Nhà phố 4 tầng 1 tum
Nhà phố 4 tầng 1 tum

Đặc điểm thiết kế nổi bật

Công trình hướng Đông Nam, nổi bật với mặt tiền tông xanh mát của các mảng tường sơn màu xanh kết hợp cây xanh ở ban công, bồn cây cùng với các chi tiết màu trắng tinh tế, tạo nên tổng thể nhẹ nhàng, thanh lịch.

Các ban công được thiết kế mở, kết hợp lan can sắt lập là sơn tĩnh điện, vừa tăng tính thẩm mỹ, vừa mang lại cảm giác thông thoáng.

Nhà phố 4 tầng 1 tum
Nhà phố 4 tầng 1 tum

Hệ thống cửa kính lớn giúp ánh sáng tự nhiên tràn ngập vào trong nhà, tiết kiệm năng lượng và mang đến cảm giác gần gũi với môi trường.

Thiết kế này cũng mở rộng không gian, tạo cảm giác nhà phố không còn chật chội.

Mặt Bằng Bố Trí Công Năng Và Thiết Kế Nội Thất Nhà Phố 4 Tầng 1 Tum

Tầng 1: Bao gồm không gian phòng khách thông tầng, Gara để xe ô tô và khoảng 3 chiếc xe máy, 1 phòng vệ sinh nhỏ đủ để phục vụ nhu cầu thiết yếu của khách. Trong đó không gian phòng khách và Gara được ngăn cách bởi một hệ cửa kính tạo không gian riêng tư cho phòng khách tránh khỏi tiếng ồn và khói bụi, cũng như không bị thất thoát không khi lạnh từ điều hòa của phòng khách.

Mặt bằng tầng 1
Mặt bằng tầng 1

Tầng lửng: Phòng bếp là trung tâm của ngôi nhà, cũng là nơi mọi thanh viên trong gia đình xum vầy bên mâm cơm sau môi ngày làm việc, học tập vất vả. Phòng bếp được Xây Dựng Đại Việt thiết kế thông thoáng, phía trước là ô cửa kính lớn hướng ra mặt tiền bên ngoài được trồng cây xanh mát, phía sau là khoảng thông tầng của phòng khách được treo đèn chùm lung linh, đẹp mắt

Mặt bằng tầng lửng
Mặt bằng tầng lửng

Tầng 2, Tầng 3: Bao gồm 2 phòng ngủ phía trước và phía sau, ở giữa được bố trí 1 phòng vệ sinh chung và cầu thang có giếng trời lấy ánh sáng và gió tự nhiên.

Mặt bằng tầng 2
Mặt bằng tầng 3

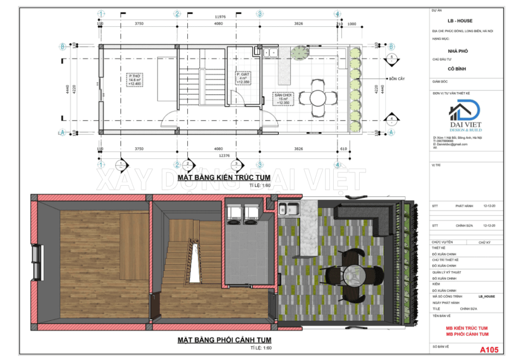
Tầng tum: Là không gian cho phòng thờ ấm cúng, linh thiêng, phòng giặt và sân thượng. Đặc biệt sân thượng được thiết kế mini bar để gia chủ có thể mời khách quý đến thưởng thức các loại đồ uống và ngắm nhìn khoảng không rất rộng phía trước của ngôi nhà.

Mặt bằng tầng tum
Mặt đứng công trình
Mặt cắt công trình
Mặt cắt công trình
Mặt cắt công trình
Mặt cắt công trình
Nội thất gara
Nội thất gara
Nội thất phòng khách
Nội thất phòng khách
Nội thất phòng khách
Nội thất phòng khách
Nội thất phòng bếp
Nội thất phòng bếp
Nội thất phòng bếp
Nội thất phòng bếp
Nội thất phòng ngủ bố mẹ
Nội thất phòng ngủ bố mẹ
Nội thất phòng ngủ con gái
Nội thất phòng ngủ con gái
Nội thất phòng ngủ con gái
Nội thất phòng ngủ con gái
Nội thất phòng ngủ con trai
Nội thất phòng ngủ con trai
Nội thất phòng ngủ con trai
Nội thất phòng ngủ con trai
Ảnh thực tế thi công
Ảnh thực tế thi công
Thi công ốp tường phòng vệ sinh
Thi công ốp tường phòng vệ sinh
Thi công nội thất phòng bếp
Thi công nội thất phòng bếp
Ảnh thi công nội thất phòng ngủ
Ảnh thi công nội thất phòng ngủ
Ảnh thi công nội thất phòng ngủ
Ảnh thi công nội thất phòng ngủ
Ảnh thi công phòng vệ sinh
Ảnh thi công phòng vệ sinh

Liên hệ ngay để được tư vấn miễn phí!

Xây Dựng Đại Việt cam kết mang đến không chỉ một ngôi nhà đẹp mà còn là một tổ ấm hoàn hảo, nơi lưu giữ những giá trị sống ý nghĩa.

Mọi chi tiết liên hệ:

Công ty TNHH Xây Dựng CN Đại Việt

► 57 Đường Hải Bối, P. Hải Bối, Q. Đông Anh, TP. Hà Nội.

►Hotline: 0907.889.666 – Mr. Đỗ Xuân Chinh

►Email: Daivietdxc@gmail.com

Để lại một bình luận

zalo-icon
facebook-icon
phone-icon
zalo-icon
facebook-icon
phone-icon