Mẫu nhà phố 4 tầng 1 tum được Xây Dựng Đại Việt thiết kế và thi công trọn gói cho nhà anh Luyện tại Đông Anh, Hà Nội

Thông Tin Công Trình “Nhà Phố 4 Tầng 1 Tum Tại Đông Anh”
- Khách hàng: Luyện
- Địa chỉ: Đông Anh, Hà Nội
- Phong cách thiết kế: Nhà phố hiện đại
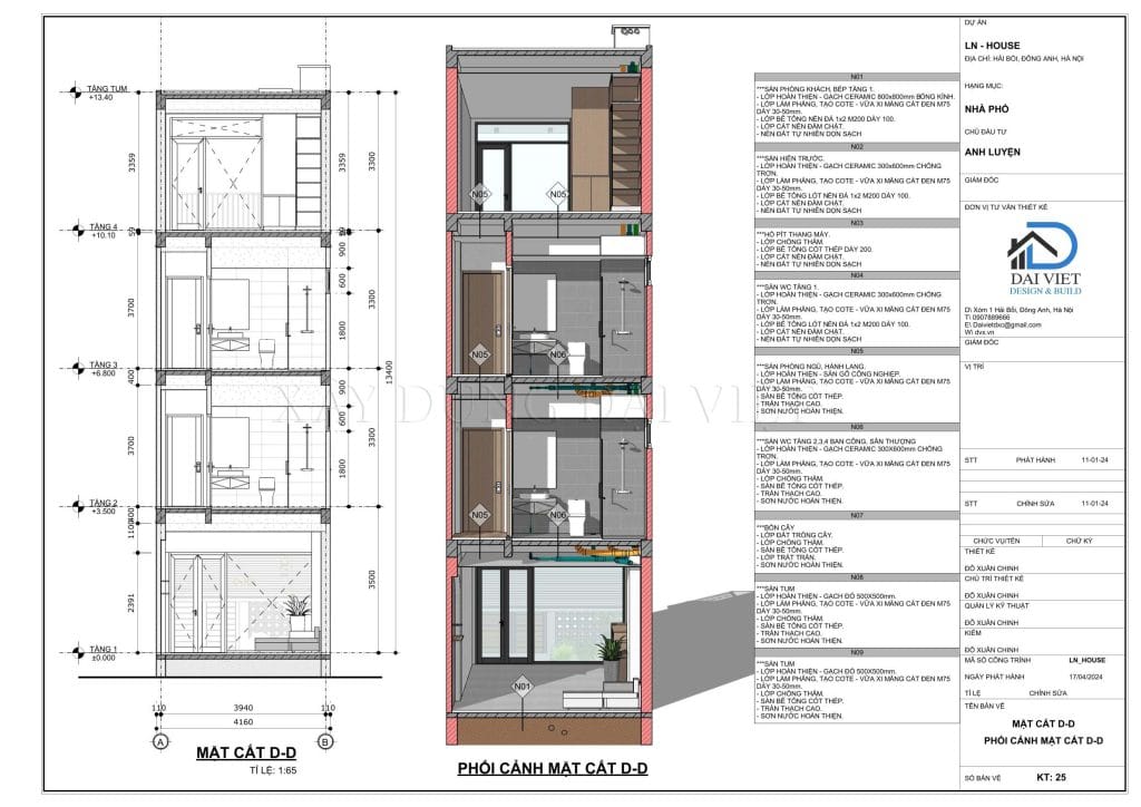
- Diện tích xây dựng: 4x12m
- Tâng 1: Phòng khách, 1wc, thang bộ, thang máy
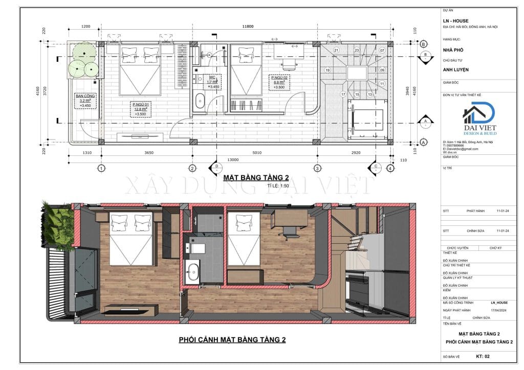
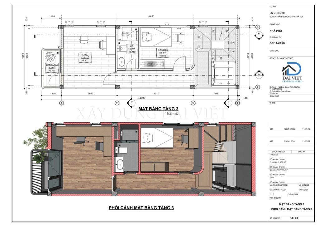
- Tầng 2,3: 2 phòng ngủ, 1 Wc
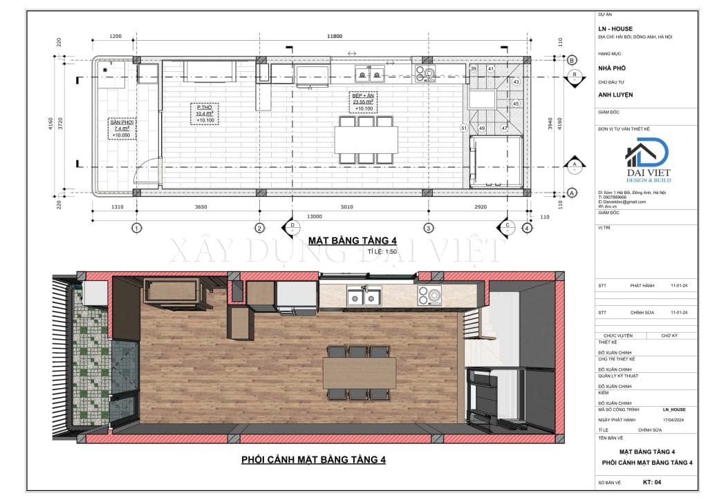
- Tầng tum: Phòng bếp, phòng thờ

Nhà phố 3 tầng 1 tum hiện đại có điểm nhấn là những khối hình bo cong nhẹ tạo nên sự mềm mại cho ngôi nhà. Nhà phố 3 tầng 1 tum có kiến trúc hiện đại chiếm ưu thế là tông trắng kết hợp với tông xám của gạch ốp tường. Đây sẽ là điểm nhấn trong phong cách phối màu vô cùng tinh tế và sang trọng.

Không gian mở với hệ thống cửa kính lớn giúp cho nhà phố 3 tầng 1 tum hiện đại trở nên thoáng đãng. Đón được ánh sáng tự nhiên tối đa nhất, hạn chế sử dụng điện năng chiếu sáng vào ban ngày. Bên cạnh đó, nhà phố 3 tầng 1 tum hiện đại 4x12m cũng dễ dàng tiếp cận được nguồn gió mát mẻ từ thiên nhiên vào mùa hè. Tại cửa chính của căn nhà phố 3 tầng 1 tum hiện đại được lắp đặt thêm hệ thống đèn led khiến ngôi nhà trở nên lung linh, nổi bật hơn vào ban đêm.








Một Số Hình Tại Công Trình


Liên hệ ngay để được tư vấn miễn phí!
Xây Dựng Đại Việt cam kết mang đến không chỉ một ngôi nhà đẹp mà còn là một tổ ấm hoàn hảo, nơi lưu giữ những giá trị sống ý nghĩa.
Mọi chi tiết liên hệ:
Công ty TNHH Xây Dựng CN Đại Việt
► 57 Đường Hải Bối, P. Hải Bối, Q. Đông Anh, TP. Hà Nội.
►Hotline: 0907.889.666 – Mr. Đỗ Xuân Chinh
►Email: Daivietdxc@gmail.com
